АДМИНИСТРИРОВАНИЕ ПРОЕКТА

Сегодня для получения необходимого результата не достаточно просто контролировать качество конструкций, инженерных систем и отделки.

Подрядчики, работающие в юрисдикции UAE, понимают язык юридической силы и более внимательно и с уважением относятся к проектам, которые с первых дней грамотно администрируются командой клиента

В процессе правильного ведения документооборота мы ведем отчётную деятельность и формируем архивный кейс проекта, в котором формируем каждый шаг подрядчика и клиента.

Этот инструмент позволяет команде клиента иметь очень выигрышную позицию в случае возникновения споров и арбитража.

К тому же, когда подрядчик понимает, что с первых шагов служба клиента делает понятные и правильные шаги, которые уменьшают возможности не выполнения им обязательств, он понимает, с кем имеет дело и что этому проекту нужно уделять максимальное внимание.

Сегодня грамотное администрирование процесса является основным и самым сильным инструментом управления командой Карбонит.

Администратор проекта в строительстве и его обязанности

Quality Assurance and Quality Control (QA/QC) в строительстве — это система процедур, направленных на контроль соответствия работ проекту, нормативам и контрактным требованиям. За процессы QA/QC отвечает администратор проекта в строительстве, который координирует контроль качества, сроки проверок и взаимодействие с подрядчиками. В рамках выбранного проекта администратор проектов обеспечивает прозрачность процессов и снижает риски переделок. Эффективное администрирование проектов позволяет фиксировать отклонения и оперативно устранять их на всех этапах работ.

Администратор строительного проекта : Роль QA/QC в строительных проектах

QA/QC напрямую влияет на стоимость, сроки и технический результат реализации строительного объекта. Администратор строительного проекта формирует и внедряет систему контроля качества, охватывающую входной контроль материалов, проверку технологических процессов и соответствие выполненных работ проектной документации. Он определяет контрольные точки, перечень проверок и требования к отчетности в рамках QA/QC.

В ежедневной операционной работе администратор проекта в строительстве применяет утвержденные регламенты QA/QC для контроля подрядчиков и субподрядчиков на строительной площадке. В его задачи входит проверка соблюдения технологий, анализ результатов лабораторных испытаний, контроль устранения выявленных несоответствий и допуск к следующим этапам строительства.

При этом администратор проектов отвечает за согласование результатов проверок, оформление актов, отчетов и протоколов QA/QC, а также за их включение в систему администрирование проектов. Он обеспечивает корректное ведение исполнительной документации в строительстве, фиксируя все результаты контроля качества, что позволяет минимизировать риски претензий со стороны заказчика, технического надзора и контролирующих органов.

Контрольные процедуры и документация QA/QC

Качественное QA/QC невозможно без четко выстроенных контрольных процедур и структурированной отчетности. Администрирование проектов охватывает полный цикл контроля качества — от поступления материалов на объект до подготовки итогового комплекта документов для сдачи заказчику. Все действия выполняются по утвержденным регламентам и фиксируются в системе контроля.

В рамках QA/QC администрирование проектов включает:

  • контроль входящих материалов и сертификатов с проверкой соответствия спецификациям, стандартам и требованиям проекта;
  • поэтапное ведение исполнительной документации в строительстве с фиксацией фактически выполненных объемов и технологических операций;
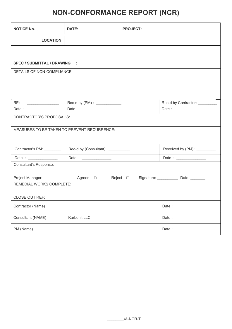
  • регистрацию выявленных несоответствий, оформление NCR и контроль выполнения корректирующих мероприятий;
  • проверку соответствия выполненных работ проектным решениям, рабочей документации и утвержденным методам производства работ;
  • системное архивирование отчетов QA/QC, актов проверок и протоколов испытаний для последующей сдачи объекта.

Во всех перечисленных процессах администратор строительного проекта обеспечивает методологию контроля, определяет формат отчетности и контрольные точки. В свою очередь, администратор проектов отвечает за корректность оформления данных, их своевременную актуализацию и интеграцию в общее администрирование проектов. 

Практическая ценность QA/QC для заказчика,  администрирование проектов

Грамотно выстроенная система QA/QC снижает финансовые и юридические риски. Администратор проекта в строительстве контролирует, чтобы ведение исполнительной документации в строительстве велось без пропусков и ошибок. За счет системного администрирование проектов заказчик получает прозрачную картину качества работ. Администратор строительного проекта обеспечивает соответствие объекта требованиям контрактов и норм. Регулярное ведение исполнительной документации в строительстве упрощает приемку и ввод объекта в эксплуатацию, а также подтверждает качество выполненных работ.